Fantastyczną i inspirującą lekcję historii bialskiego lotnictwa przygotowali uczniom Szkoły Podstawowej nr 3 panowie piloci Jerzy Trudzik i Franciszek Ostrowski ze Stowarzyszenia Seniorów...
Prezydent Michał Litwiniuk wspólnie z dyrektorem ZSZ nr 1 - bialskiego "Ekonomika" - Ireneuszem Długołęckim i reprezentującymi bialskie kluby MKS Podlasie i Akademię Piłkarską TOP 54, prezesami Karolem Filipkiem i dr. Tomaszem Buraczewskim, trenerem Miłoszem Storto oraz kapitanem Kamilem Kocołem zaprezentowali projekt kolejnego, III etapu budowy miejskiego stadionu.
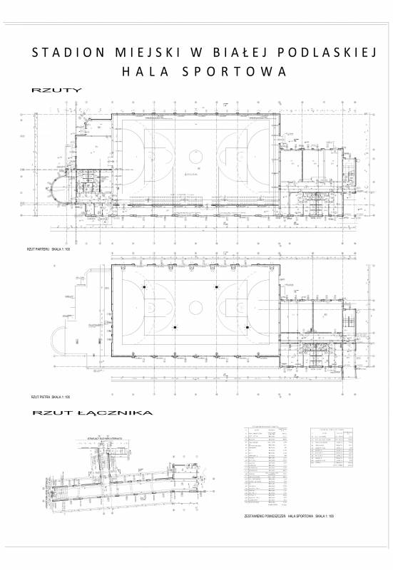
Projekt obejmuje: trybunę na ok. 1200 miejsc, pełnowymiarową halę sportową zagospodarowanie terenu wraz z kolejnymi parkingami dla ok. 170 aut osobowych, kilku autokarów i układem drogowym.
Prezydent podkreślił: "Nasz projekt to efekt współpracy naszego środowiska. Spełnia wymogi PZPN dla II ligi, jest realizacją marzeń. Zabezpiecza nasze potrzeby, daje możliwość jego rozwoju w przyszłości".
Trybuna jest w całości zadaszona, zlokalizowana po stronie zachodniej, by kibice nie musieli oglądać rozgrywek „pod słońce”. Spełnia wszelkie wymogi funkcjonalności i bezpieczeństwa, także wobec potrzeb kibiców z niepełnosprawnością.
Kibice będą oglądać mecze również na telebimie. Trybuna dla kibiców gości to około 90 miejsc siedzących - ogrodzone cztery rzędy po stronie wschodniej, odrębne wejście, wjazd i parking. Hala jest maksymalnie zbliżona do "Ekonomika", z bezpośrednim łącznikiem ze szkołą i internatem. Teren zieleni to dodatkowe miejsce treningów, rozgrzewek.
"To projekt odpowiedzialny. Jego założenia wpisują się w naszą strategię rozważnego gospodarowania miejskim budżetem. Kochamy sport, ale chcemy też mieć kolejne inwestycje, kilometry dróg i chodników. Dlatego nasze projekty są rozważne - tak, by Biała Podlaska mogła rozwijać się w każdej dziedzinie" - zaznacza Michał Litwiniuk.
Zrealizowane są już dwa etapy przedsięwzięcia: w pierwszym powstał parking dla 115 pojazdów od strony ul. Marszałka J. Piłsudskiego w drugim powstała płyta boiska wraz z instalacjami – drużyna MKS Podlasie będzie na niej trenować już od wiosny.
Przedstawiony projekt pozwala na rozpoczęcie trzeciego etapu inwestycji: na najbliższą sesję Rady Miasta prezydent skierujee projekt uchwały w sprawie zmiany Miejscowego planu zagospodarowania przestrzennego, po jego uprawomocnieniu zostanie wydane pozwolenie na budowę i ogłaszony przetarg.
W hali IV LO im. Stanisława Staszica w Białej Podlaskiej rozegrano Finał Miasta w Koszykówce Dziewcząt – Licealiada
Z okazji Dnia Kobiet oraz Dnia Mężczyzn bialski oddział Polskiego Związku Emerytów, Rencistów i Inwalidów zorganizował wyjątkowe spotkanie integracyjne. Wydarzenie odbyło się pod honorowym patronatem prezydenta miasta Michała Litwiniuka
Miniony weekend przyniósł mieszkańcom Białej Podlaskiej dawkę wielkich emocji na boiskach i halach sportowych. Bialscy zawodnicy w różnych dyscyplinach zaprezentowali wysoką formę, walcząc o ligowe punkty i turniejowe trofea. Zwycięstwo szczypiornistów
Bialscy artyści wystąpili dla mieszkanek miasta w wyjątkowym koncercie z okazji Dnia Kobiet. Wydarzenie pod tytułem „Męskim głosem o kobietach”





